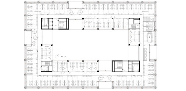
ALLREAL OFFICE AG ZÜRICH
10'000m2, 650 Arbeitsplätze – und die Büronauten für die Nutzungsstudie des Büro- und Arbeitsplatzkonzeptes, für das Vermietungsangebot, für Raum und -Flächendiagramme der Nutzung und für den Flächennachweis nach SIA 416.
ALLREAL OFFICE AG ZÜRICH
10'000m2, 650 Arbeitsplätze – und die Büronauten für die Nutzungsstudie des Büro- und Arbeitsplatzkonzeptes, für das Vermietungsangebot, für Raum und -Flächendiagramme der Nutzung und für den Flächennachweis nach SIA 416.